利索能及
我要发布
收藏
专利号: 2019100199906
申请人: 潘其乐
专利类型:发明专利
专利状态:已下证
更新日期:2026-04-09
缴费截止日期: 暂无
联系人

摘要:

权利要求书:

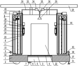
1.一种活动式公共淋雨设备,包括底板(1),底板(1)右侧螺纹连接有竖直的螺杆(37),螺杆(37)上端固定有转杆(38),螺杆(37)下端铰连接有垫块(31),底板(1)下端设置有滚轮(2),其特征在于,底板(1)上固定有上下开口的矩形柜体,所述柜体上方设置有顶板(29),顶板(29)与柜体的侧板通过支杆(33)固定连接,柜体的后侧板上设置有门板(22),柜体的左右侧板内部设置有容纳沐浴用水的容纳槽(8),容纳槽(8)内设置有搅拌装置,柜体内的底板(1)上设置有对使用过的沐浴水进行收集的收集装置,柜体左右侧板的内侧均设置有向其内部的容纳槽(8)内注入精油的压注装置,柜体的左右侧板上均固定有与其内部连通的出液管(30),出液管(30)上均设置有水泵(32),两出液管(30)上部均呈水平状态相对延伸,出液管(30)的出口端上均设置有出液单向阀(34),所述两出液单向阀(34)的出口端与所述收集装置上方的连通管(36)通过三通(35)连通,连通管(36)下端设置有布水器(39)。

2.根据权利要求1所述一种活动式公共淋雨设备,其特征在于,所述搅拌装置包括开设在容纳槽(8)左右槽壁上的竖直滑槽(11),两滑槽(11)之间的容纳槽(8)内设置有滑杆(12),滑杆(12)的两端均固定有滑块(13),两滑块(13)分别卡接在两侧的滑槽(11)内,容纳槽(8)内设置有竖直的往复丝杠(14),容纳槽(8)内往复丝杠(14)的下端圆周均布固定有多个搅拌叶片(43),往复丝杠(14)与滑杆(12)螺纹配合,滑杆(12)下方往复丝杠(14)上套设有套筒(40),套筒(40)上端固定在滑杆(12)上,套筒(40)下端外缘转动连接有与其同轴心的转环(41),转环(41)外缘均布固定有多个螺旋搅拌叶片(42),容纳槽(8)上方的柜体侧板上均固定有电机(15),电机(15)的输出轴与往复丝杠(14)连接,滑杆(12)上设置有通孔(17),纵向的转轴(19)转动设置在滑杆(12)上,转轴(19)穿过通孔(17),通孔(17)内的转轴(19)上固定有与其同轴心的齿环(18),容纳槽(8)内的固定有贯穿通孔(17)的竖直齿条(16),齿条(16)与齿环(18)啮合,齿条(16)内部设置有容纳精油的精油腔(46),齿条(16)上端延伸至容纳槽(8)外部,滑杆(12)前后两侧的转轴(19)外缘上均固定有多个搅拌杆(20)。

3.根据权利要求1所述一种活动式公共淋雨设备,其特征在于,所述收集装置包括柜体内部底板(1)上的槽孔(3),槽孔(3)内部上端固定有滤板(4),滤板(4)下方的槽孔(3)内固定有收集流经滤板(4)的沐浴水的收集箱(5),收集箱(5)底部固定有与其内部连通的排液管(6),排液管(6)上设置有第一阀门(7)。

4.根据权利要求1或2所述一种活动式公共淋雨设备,其特征在于,所述压注装置包括固定在柜体后侧板内侧的筒体(25),筒体(25)上端开口,筒体(25)内设置有活塞(26),活塞(26)外缘与筒体(25)的内壁滑动密封接触,筒体(25)的下端设置有与其连通的注液管(23),注液管(23)一端与齿条(16)内的精油腔(46)连通,注液管(23)上设置有进液单向阀(24),活塞(26)上端固定有顶杆(27),顶杆(27)上端固定有把杆(28),把杆(28)上端固定有配重块(44),容纳槽(8)内的齿条(16)内侧壁上开设有多个注液开关,所述注液开关包括耳板(53),耳板(53)上方和下方的齿条(16)内侧壁上均开设有连通容纳槽(8)和精油腔(46)的出液孔(47),推杆(48)贯穿出液孔(47),推杆(48)直径小于出液孔(47)的内径,精油腔(46)内的推杆(48)一端上固定有用于封堵出液孔(47)的挡板(49),挡板(49)上固定有密封垫(50),容纳槽(8)内的推杆(48)上固定有挡环(51),挡环(51)与齿条(16)之间的推杆(48)上套设有弹簧(52),耳板(53)上铰连接有旋转杆(54),通孔(17)朝向注液开关的侧壁的运动轨迹经过旋转杆(54)。

5.根据权利要求2所述一种活动式公共淋雨设备,其特征在于,所述电机(15)为防水电机。

6.根据权利要求1所述一种活动式公共淋雨设备,其特征在于,所述容纳槽(8)上端的柜体上固定有与其连通的进气管(45)。

7.基于权利要求1所述的一种活动式公共淋雨设备的使用方法,其特征在于,使用前,打开进水管(9)上的第二阀门(10),将水注入到容纳槽(8)内,并向两筒体(25)内添加进不同香味的精油,然后拖动底板(1),将本装置托运至游泳处旁,然后通过转杆(38)拧动螺杆(37),使得螺杆(37)带动垫块(31)下行,直至垫块(31)紧抵地面;当游泳者进行淋浴时,打开门板(22)进入到柜体内部,根据个人的喜好选择精油的香味,然后将精油加注到筒体(25)内,配重块(44)在重力作用下使得活塞(26)具有沿筒体(25)轴向方向向下运动的趋势,筒体(25)内的压力升高,然后启动电机(15),电机(15)启动后,就会带动与其输出轴连接的往复丝杠(14)转动,往复丝杠(14)转动时,滑杆(12)就会沿往复丝杠(14)的长度方向往复运动,同时,转轴(19)上的齿环(18)与齿条(16)的啮合能够使得滑杆(12)在运动时转轴(19)带动搅拌杆(20)转动,滑杆(12)下行时,当朝向注液开关的通孔(17)侧壁下端与旋转杆(54)接触后,滑杆(12)使得旋转杆(54)向下旋转并挤压耳板(53)下方的推杆(48),使得推杆(48)向精油腔(46)内部推进,弹簧(52)被压缩,挡板(49)上的密封垫(50)与齿条(16)分离,此时出液孔(47)打开,筒体(25)内的精油通过注液管(23)进入到精油腔(46)内,并从打开的出液孔(47)进入到容纳槽(8)内,同理,当滑杆(12)上行时旋转杆(54)使得耳板(53)上方的出液孔(47)打开,使得精油通过耳板(53)上方的出液孔(47)进入到容纳槽(8)内,利用多个注液开关,分层向容纳槽(8)内注入精油,然后通过搅拌杆(20)的搅拌,进而使得精油与水充分的混合,加快了混合的效率,然后启动水泵(32),水泵(32)将精油与水的混合液体从容纳箱(8)中抽出并通过出液管(30)上的出液单向阀(34)、三通(35)和连通管(36)进入到布水器(39)内,精油与水的混合液体通过布水器(39)后淋到使用者的身上,此时使用者可进行淋浴,而使用过的淋浴水就会通过滤板(4)流进收集箱(5)中进行收集,打开排液管(6)上的第一阀门(7)可将收集箱(5)中的废水排出。